Projects

Green Academy of the Green City: Conservation and Regeneration of the Courtyard of No. 1 Chapel at Peking Union Medical College

  • XU Yuan ,
  • HUANG Chuanhui ,
  • ZHU Yufan , *
Expand
  • School of Architecture, Tsinghua University

XU Yuan, Ph.D., is an assistant professor in the School of Architecture, Tsinghua University. Her research focuses on landscape planning and design, and historical landscape regeneration

HUANG Chuanhui is a master student in the School of Architecture, Tsinghua University. His research focuses on historical campus regeneration

ZHU Yufan, Ph.D., is a professor in the School of Architecture, Tsinghua University, and an editorial board member of this journal. His research focuses on landscape planning and design, and history and theory of landscape architecture

Online published: 2025-12-12

Copyright

Copyright reserved © 2025.

Cite this article

XU Yuan , HUANG Chuanhui , ZHU Yufan . Green Academy of the Green City: Conservation and Regeneration of the Courtyard of No. 1 Chapel at Peking Union Medical College[J]. Landscape Architecture, 2025 , 32(3) : 49 -54 . DOI: 10.3724/j.fjyl.LA20240073

北京协和医学院(以下简称协和)壹号礼堂坐落于东城区东单三条胡同南侧,与教学区隔街相峙,所在庭院原为清代豫王府前场。1915年,以“促进全世界人类福祉”为使命的美国洛克菲勒基金会收购协和医学堂与豫王府,创办建设“北京协和医学校”,聘请建筑师柯立芝(Charles A. Coolidge)与何士(Harry H. Hussey)进行考察、规划与设计,以能够显现项目所在国家特质为导则[1],建成一座具有中国宫殿式外观的中西合璧的医院和校园。《纽约时报》称协和为“绿瓦之城”(Green City)[2] ,与不远处的紫禁城交相辉映。协和是中国现代医学的摇篮,深刻影响了近代建筑发展的走向[3]。2006年北京协和医学院旧址列入第六批全国重点文物保护单位。2021年是北京协和医学院落成100周年,文物修缮工程持续推进,礼堂建筑与庭院修缮更新工程于同年9月典礼前完工。
礼堂坐镇协和建筑群中轴线南端,编号为“壹”(工程编号A),可见其重要意义。“工”字形平面的礼堂建筑内设240座观众席,屋顶结合重檐庑殿顶与歇山顶,铺绿琉璃筒瓦,外砌磨砖对缝青砖清水墙,底筑汉白玉台明铺红土瓷砖。1921年建校后,礼堂一直是医学院进行礼仪、礼拜、文化活动的场所,因其先进的舞台条件与时代气息引得名士荟萃,成为名噪一时的新文化圣地,林徽因、徐志摩曾在此演出《齐德拉》为泰戈尔庆寿,梁思成绘制布景,胡适主持庆典。礼堂庭院占地约1 964 m2,以东西南三面围墙围合,面向教学区的北面边界较通透,青砖立柱配铁艺栏杆。建筑居中,坐南朝北,两侧自成东、西双庭格局,设计图纸与历史照片中可见两层简洁的台地,地面以草坪为主,沿院墙等距种植乔木。
百年流转,礼堂庭院已成为东方广场地块内的一座孤岛,南侧面阔约140 m的君悦酒店大楼紧逼礼堂,几乎遮天蔽日。市政道路将礼堂与教学区划分为相对独立的运营区域,而早期规划图纸中的门房未建成,致使后勤空间紧缺,后期于东西两庭尽端加建了门卫用房与卫生间,皆为单层砖混结构,平屋顶外挂绿琉璃瓦,外墙贴青色仿清水砖作为装饰面。尽管加建建筑的风貌试图向礼堂靠近,但制式、材质、做法等相去甚远。东庭地面完全硬质化,摆放有桂花盆栽;西庭人行道外绿地栽植玉簪、鸢尾和球状黄杨,地砖与绿植均呈现出普通公园的绿化状态,遇雨天建筑周边积水严重。院内构筑物大多保留完好,东西院墙与豫王府院墙位置重合、青砖墙内嵌浅砖雕,台地的挡土墙、台阶用花岗岩整石。百年岁月流转,最大变化的是昔日幼小的树苗成长为参天古树(二级),7株苍虬纵恣的国槐撑起绿色穹顶,隔开喧闹的王府井,呵护百年协和这所医学圣殿。
图1 建筑师何士绘制的规划透视图[4]

Fig. 1 Perspective of Peking Union Medical College drawn by Harry H. Hussey[4]

图2 礼堂庭院历史照片

Fig. 2 Historical photograph of the Chapel and its courtyard

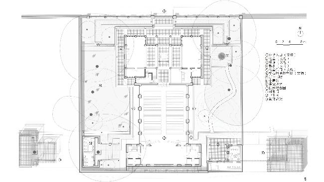
图3 礼堂与庭院区位图

Fig. 3 Location of the Chapel and its courtyard

图4 豫王府与北京协和医学校的平面关系分析

Fig. 4 Overlay analysis drawing of the Mansion of Prince Yu and PUMC campus

1 格局辨明

1.1 延续 300年的中轴总控结构

柯立芝与何士两位主持建筑师都曾到访豫王府,对其拆除深感遗憾[4]。对比《乾隆京城全图》与协和建校之初绘制的豫王府地财图、校园规划图[4]可见,豫王府用地规整,自1750年起便形成了稳定的轴线结构,大门与主要建筑沿南北中轴布置,其他建筑呈对称式布局,门前向南凸出为宽阔的T形前场。校园规划沿用了王府中轴式的空间总体控制规划,在门区更以礼堂、大门以及生物化学教学楼、解剖教学楼和生理药理教学楼构成的C形建筑组团强化了这一特征。
礼堂坐镇中轴南端,庭院也呈东西对称。修缮更新工程意图将此空间格局明晰化,复现旧影中简明的空间气质,并对环境进行系统性经营:台地以下区域完全对称,仅保留通行功能,台地以上区域对应建筑出入口设活动区、草坪、活动区3段,南侧和东侧改建咖啡书吧,西侧维修卫生间,皆以传统样式的紫藤花架搭连附属建筑作南立面收尾;依据东西庭院的主题与活动特性重新规划铺装范围,增加弹性活动空间;绿地以草坪为主,点植北京园林常用小型乔灌木,早春丁香馥郁,入夏紫藤荫浓,秋日黄栌绚彩,入冬古槐苍劲。
图5 礼堂庭院设计总平面图

Fig. 5 Master plan of the chapel’s courtyard

图6 礼堂庭院设计轴测图

Fig. 6 Axonometric design drawing of the chapel’s courtyard

1.2 东西双庭

百年校庆之际,协和将“尊科学济人道”的校训悬于礼堂二层。作为校园精神圣地和宝贵的户外开放空间,礼堂庭院的主题同样需有认识论高度的设定。应对对称的双庭格局,有感于医者的科学精神与悲悯之心,西庭设主题“闵”,东庭设主题“省”。
西庭中部是校长纪念园,古树下恢复草坪,错落布置9尊已逝校长纪念塑像,由著名雕塑家吴为山创作并定位摆放。南端卫生间供礼堂观众使用,原男卫与女卫同向的拐角挡墙调整为对向,集中通行路线并在通道上增建紫藤花架强化连接,花架面向校长纪念园的一侧增设冰裂纹格栅月洞门进行遮挡,以降低人流干扰。
东庭新增多处供师生阅读、演讲、文艺与休闲活动的户外开放空间,有柏拉图学园之意。南端门卫用房改建为咖啡书吧向师生开放,与礼堂连接区域上搭紫藤花架、下筑小舞台界定为灰空间,可结合草坪弹性使用。一条蜿蜒的小径绕过老槐树,将小舞台与礼堂前庭东入口外的小广场相连,广场中心置有倒圆台形涌泉水钵。
人群皆自北向南进入礼堂庭院,南院墙成为主要的观赏面,然而随着君悦酒店架高入口区的建设,近在咫尺的巨大建筑和雨棚、大块贴面砖、探照灯与电线等强烈干扰着历史风貌,校方反复强调须对此提出解决方案。修缮更新工程对庭院空间最显著的空间整合就在此处:两侧庭院均以大型花架构筑重构附属建筑、礼堂建筑与围墙的空间秩序,把控全院节奏关系,由此在南院墙前形成新的观赏面。
图7 礼堂入口区

Fig. 7 Entrance of the Chapel

图8 西庭

Fig. 8 West courtyard

图9 西庭设计剖面图

Fig. 9 Section drawing of the west courtyard

2 功能开放

2.1 开放空间的机能疏通

礼堂庭院整体开放,院内流线体系须进行系统梳理。礼堂建筑有正门、前庭东西侧门、后台东西侧门5个出入口,由此确定了室外活动空间的基本骨架。面向庭院的前后侧门外均设活动区并强化与附属建筑的连接,中部“空”出草坪区辅以微地形起伏,南北连通路径由中心直通改为侧边曲线前行,古树下空间只做简明处理以衬托古树姿态。广场和通道铺装更换为传统拼法的青砖,曲径用小料石,舞台用红土瓷砖与青白石整石台阶。
另一重要体系是排水系统。礼堂初建时的二层台地确立了由南向北的基本排水方向,但原地下排水系统已无法有效运行,雨天积水问题严重。修缮更新工程新建了扩容排水管网,排布时避让古树与原管线,两侧庭院中部恢复的绿地具有排水和储水功能,通过微地形设计将雨水引向地漏再接入城市排水系统。

2.2 面向高密度使用的弹性场地

协和地处老城核心区及王府井商圈,其校园空间极其局促,重新开放的礼堂庭院迅速成为典礼与日常活动的重要场所,广场、草坪与舞台等皆可弹性使用。
开学典礼与毕业典礼是学校最为庄严隆重的活动,自建校起便于礼堂内举办。礼堂庭院修缮完毕即成为典礼分会场,两侧草坪摆满临时座椅,花架的钢结构为大型LED屏幕提供临时性支撑。日常使用中,庭院为礼堂开展的学术会议、论坛、演出等提供户外休憩与社交的场地,也作为中秋草坪音乐节、校庆音乐会、国庆师生座谈等活动的场地,届时花架下的平台相应变为茶歇、冷餐区或表演舞台、演讲席位。
图10 东庭

Fig. 10 East courtyard

图11 东庭设计剖面图

Fig. 11 Section drawing of the east courtyard

图12 庭院中举办多样的校园活动

Fig. 12 Various campus activities held in the courtyard

3 氛围浸润

保存完好的礼堂建筑是庭院景观的统领者,斑驳的绿色琉璃瓦屋顶、厚重的青砖墙面,以及精美的雕刻、彩绘皆烘托出浓郁的历史氛围。礼堂庭院修缮更新工程调整的内容须与文物建筑在材质、工艺、风貌等方面协调。所幸,礼堂建筑与庭院修缮同期进行,各工种匠师一应俱全。
以东南角隅为例,原门卫用房转变为咖啡书吧,修缮更新工程保留该附属建筑原本砖混主体结构、门窗洞口位置以及屋顶装饰,拆除外墙饰面砖以及部分窗下墙体,外墙采用与礼堂建筑相同规格的青砖(220 mm×440 mm×110 mm)和工艺手法加砌清水砖墙,磨砖对缝,并与主体结构钻孔植筋拉结,增加与礼堂建筑相同样式的青白石墙裙、窗台和彩绘混凝土装饰梁。
紫藤花架的形制源自礼王府的兰亭书室萝架,隐喻此处为王府前身。花架采用钢结构,刷绿色木纹漆,柱脚采用花瓶状花岗岩荔枝面。花架下方垫高240 mm设小舞台,四周以青白石收边并设两级台阶,内铺与礼堂建筑外廊同样式的红土瓷砖
图13 咖啡书吧建筑与廊架立面设计图

Fig. 13 Elevation design drawing of the book cafe building and the pergola nearby

图14 咖啡书吧与红砖舞台、花架

Fig. 14 Book cafe and the red brick stage and the pergola nearby

图15 东庭古树、涌泉水钵和咖啡厅的秋景( 15-1)和冬景( 15-2)

Fig. 15 Ancient trees, fountain bowl and book cafe in the east courtyard in autumn (15-1) and winter (15-2)

东侧广场中心的涌泉水钵的设计利用水的质感与声音特征,隐喻协和的精神源泉。水钵由黑色大理石整石雕刻而成,平面直径1.5 m,高0.35 m,水钵上表面阴刻螺旋纹金色线条,随线条镶嵌协和老校歌的英文歌词。水从圆心涌出,沿边缘落下水帘,收入水钵下方以灰色砾石隐藏的水箅子中循环使用。观者寻涌泉清脆的咕嘟声而来,靠近时可隐约听见水钵内置音响奏出的校歌旋律,伴着古树浓荫,身心涤荡。

4 结语

相较于文物,历史园林最特别也最动人之处在于其生命属性,一是自然,一是生活。因百年校庆的时间节点,壹号礼堂庭院从设计到落成不足60天,但景观的更新绝无休止,待紫藤淹没绿廊,步痕磨润青砖,便又是一个百年光景。

致谢(Acknowledgments):

特别感谢清华大学建筑学院刘健教授对北京协和医学院壹号礼堂庭院修缮更新项目的指导与支持。

1 1915年,末代豫亲王爱新觉罗·端镇在其母亲佟佳王妃的主持下以12.5万美元将府邸卖与洛克菲勒基金会。

2 北京协和医学院历史上多次更名,最初创办时称“北京协和医学校”(1916—1925年)。

3 “Green City”直译为“绿城”,因绿色琉璃瓦得名,中译加入此信息。

4 顺治九年(1652年)爱新觉罗·多铎因被多尔衮牵连降为郡王,乾隆四十三年(1778年)复豫亲王爵。《乾隆京城全图》绘成于1750年多铎复爵之前,故图中标记为信郡王府。

5 1919年柯立芝事务所工程师埃弗斯(A. J. Evers)写给柯立芝的信中建议礼堂门厅和活动室选用红土瓷砖,因其与地毯搭配效果令人满意,颜色与建筑的中国装饰完美融合。

[1]
Rockefeller Foundation Records, China Medical Board Records, RG 4 (FA114)[A]. Sleepy Hollow: Rockefeller Archive Center, 1916.

[2]
FOORD J. ‘Green City’ Shows Hope of New China[N]. New York Times, 1920-08-29.

[3]
刘亦师. 美国进步主义思想之滥觞与北京协和医学校校园规划及建设新探[J]. 建筑学报, 2020(9): 95-103.

LIU Y S. The Confluence of Great Forces: Reexamining American Progressivism and the Construction of Peking Union Medical College, 1916−1930[J]. Architectural Journal, 2020(9): 95-103.

[4]
格伦. 百年协和老建筑1921—2021[M]. 北京: 中国建筑工业出版社, 2023.

GE L. Historical Buildings of Peking Union Medical College 1921−2021[M]. Beijing: China Architecture & Building Press, 2023.

Outlines

/